




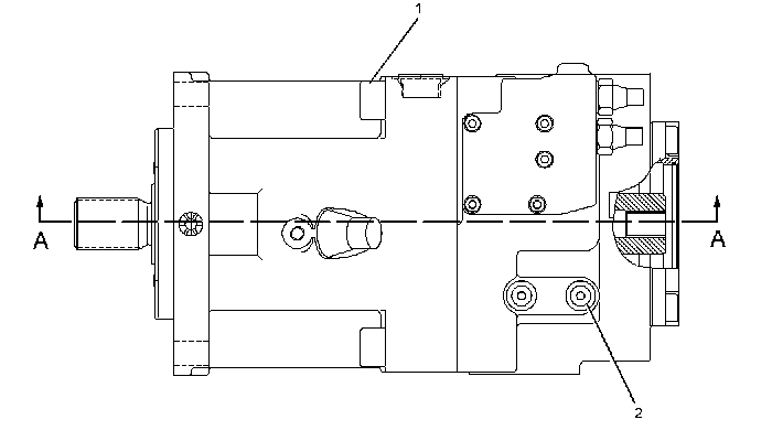
從軸端觀察軸的旋轉時,軸的旋轉方向為順時針。
該泵為帶壓力超控的負載感應可變排量活塞泵。
測試時,使用50°C(122°F)的SAE 10機油。
一圈的較大排量。260立方厘米(15.9英寸)
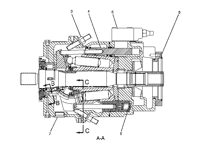
(1) 擰緊四個螺栓。830?!っ祝?12磅英尺)
(2) 三個螺塞的扭矩。..25牛頓·米(19磅英尺)

(3) 鎖緊螺母的扭矩。170?!っ祝?25磅英尺)
(4) 6E-3869彈簧
自由長度。.111.09毫米(4.374英寸)
外徑。33.8毫米(1.33英寸)
(5) 6E-1024泵控制閥總成
(6) 擰緊四個螺栓。215?!っ祝?59磅英尺)
(7) 塞子的扭矩。198?!っ祝?45磅英尺)
(8) 6E-3872彈簧
自由長度。.77毫米(3.0英寸)
外徑。21.1毫米(0.83英寸)

(9) 塞子的扭矩。198?!っ祝?45磅英尺)
(10) 塞子的扭矩。..10 N·m(90磅英寸)
在額定發動機轉速下進行測試:
輸出。..482升/分鐘(127美制加侖/分鐘)
壓力。..1000千帕(145磅/平方英寸)
泵速。..1874轉/分
發動機轉速。..1900轉/分
輸出。.477升/分鐘(126美制加侖/分鐘)
壓力。7000千帕(1015psi)
泵速。..1874轉/分
發動機轉速。..1900轉/分
輸出。..463升/分鐘(122美制加侖/分鐘)
壓力。17000千帕(2465psi)
泵速。..1874轉/分
發動機轉速。..1900轉/分
較大工作壓力(切斷壓力)。31000千帕(4500psi)

圖4 g01422007
泵控制閥

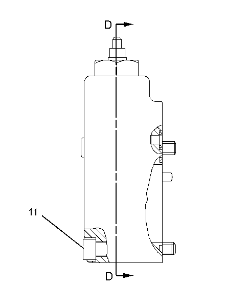
圖5 g01422008
查看D-D
較大系統工作壓力。31000千帕(4500psi)
利潤壓力。2100千帕(305psi)
(11) 擰緊五個螺栓。..21±5牛·米(15±4磅英尺)
(12) 兩個閥組的扭矩。.60±4?!っ祝?4±3磅英尺)
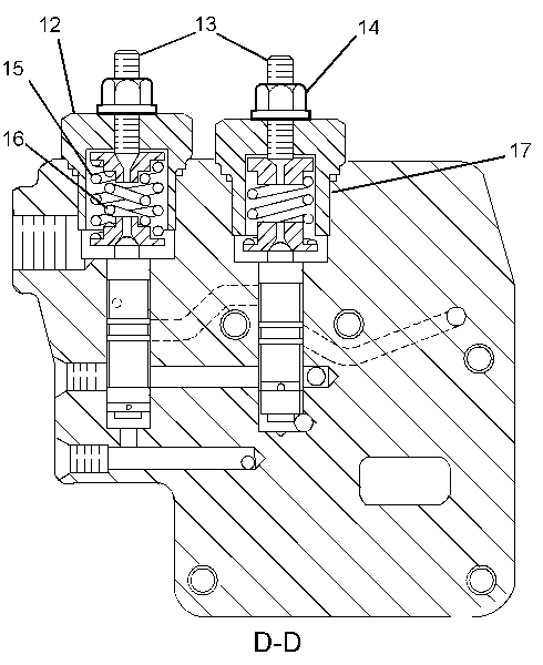
(13) 順時針轉動固定螺釘會增加系統壓力。轉動固定螺釘
逆時針方向降低系統壓力。
轉動一圈固定螺釘(13)將大約改變系統壓力。 ..7400千帕(1075psi)
(14) 擰緊兩個鎖緊螺母。.22牛·米(16磅英尺)
(15) 165-9833彈簧
測試后的自由長度。.19.4毫米(0.76英寸)
外徑。..14.6毫米(0.57英寸)
(16) 6E-3855彈簧
試驗力下的長度。13.60毫米(0.535英寸)
試驗力。92.00±13.50牛頓(21±3磅)
測試后的自由長度。17.10毫米(0.673英寸)
外徑。8.60毫米(0.339英寸)
(17) 179-6922彈簧
測試后的自由長度。20.70毫米(0.815英寸)
外徑。13.75毫米(0.541英寸)
泵頭

圖6 g01422010
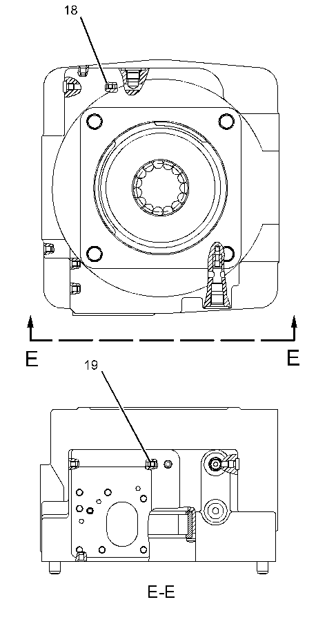
(18) 6E-3873孔塞的扭矩。6.5?!っ祝?8磅英寸)
(19) 5I-4277節流孔的扭矩。6.5?!っ祝?8磅英寸)
我們是卡特彼勒原廠件的渠道供應商,如有需求聯系:13396556600
